ドアパネル
ドアパネル

アドフラットドアパネルは、従来品(当社)と比べ、現場での使いやすさ、スムーズな出入りを考えた新しいタイプのドアパネルです。
ドア幅をより大きくし、ドアチェッカー(オプション)により、作業の安全性、円滑性を高めました。
しかも付属品の取付け、単管への取付けが簡単に出来ます。

 取付け方法と取付け手順 

固定具取付け要領(イメージ図)
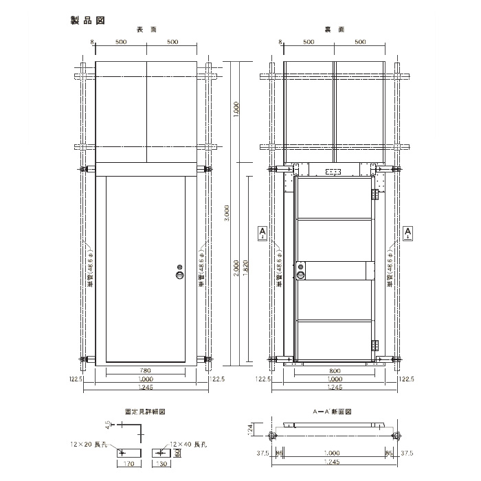
ドアパネルの取付け方法と取付け手順

  1. 梱包解体後、地面に水平に平置きした状態で、ドアパネルの四隅の固定具(M10ボルト及び座金を使用)にて、所定の位置に仮止めする。

  2. ドアを垂直にたて、左右前後水平になるように調整し、四隅の固定具を単管にて本締めする。

  3. 設置後のドアパネルの上に、アドフラット標準パネルをセットし、金具にて単管に取付け、ドアパネル上部を形成する。
     (3m高さのアドフラットの場合、1m長さの標準パネルを2枚使用する)


ドアチェッカー(オプション)の取付け方法と取付け手順

  1. ドアを設置する。

  2. 取付ける前に、ドアパネルが正しく水平に設置されていることを確認する。

  3. ドアチェッカーは、ドアパネル設置完了後、付属のネジにて所定の位置に取付ける。

※正しく水平に設置されるように注意してください。水平に設置されないと、ドア本体とドア枠に隙間が生じることがあります。またチェッカーの調整が難しくなります。種類によっては使用できないものがありますので、ドアチェッカーは当社にご注文いただくか、担当営業にお問い合わせください。


●ドアパネル本体重量:38.5kg(H=2000mm)

※製品開発上の都合により予告なく仕様を変更することがありますのでご了承ください。
ドアパネルの主な仕様

PAGE TOP