法面2号
ユニバーサルユニット自在階段 法面2号  国土交通省NETIS登録商品
作業性と安全性を考慮した多用途アルミタラップ

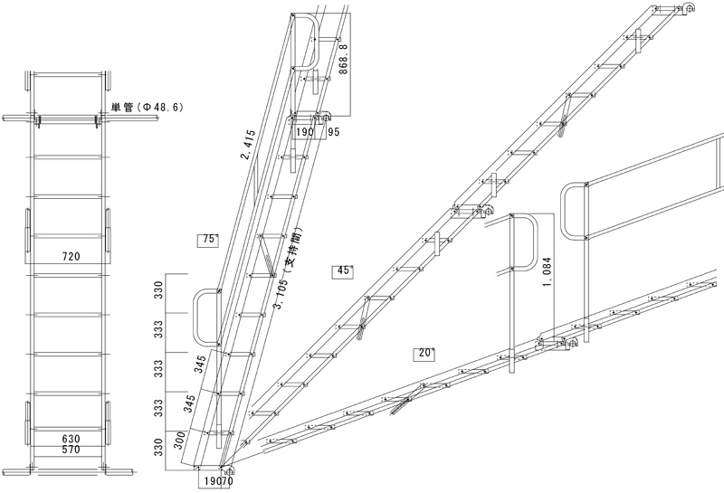
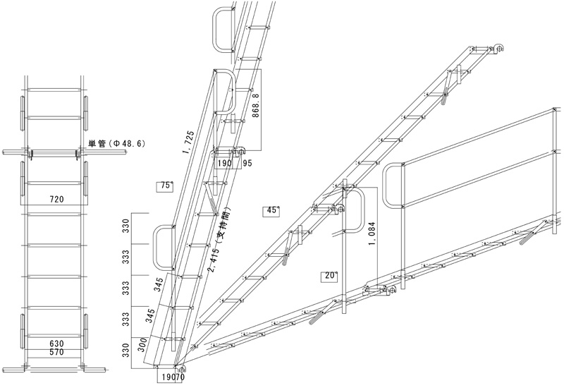
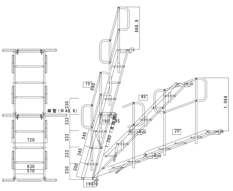
取付角度が自在に設定でき、高い汎用性と安全性を確保した新型アルミタラップです。

1. 取付設定角度が自在に設定できます。(20度〜75度)
2. 角度の調整が手摺を利用したテコの原理で簡単に行えます。
  (手摺が鉛直になればステップは水平になります。)
3. あらゆる角度の設置において、最上段の手摺の手がかりが近く安心して昇降出来ます。
4. 専用ブラケットの取り付けにより斜面での作業ステージの設置が可能です。
5. アルミ合金製で軽量、足元の悪い斜面でも設置が容易に出来ます。
6. 階段全体(手摺は着脱式)がユニットの為、従来の設置工数を大幅に削減出来ます。
  (従来工数の約90%削減!)
7. 本体重量が最大で28.5kgと軽量、又、ステップ巾が570mmと幅広くなっています。
8. 許容荷重が(中央集中荷重)250kgと安全設計になっています。

1.2mタイプ
1.2mタイプ仕様
品番 UUN212
品名 法面2号本体1.2MタイプN
型式 N-12
自重 15.0kg
許容荷重 250kg
取付角度 20°〜75°
ステップ寸法 巾570mm×奥行250mm
ステップ数 4段
1.2mタイプ手摺仕様
品番 UUN212T
品名 法面2号手摺1.2Mタイプ
型式 N-12T
自重 3.3kg
2.0mタイプ
2.0mタイプ仕様
品番 UUN220
品名 法面2号本体2.0MタイプN
型式 N-20
自重 22.5kg
許容荷重 250kg
取付角度 20°〜75°
ステップ寸法 巾570mm×奥行250mm
ステップ数 7段
2.0mタイプ手摺仕様
品番 UUN220T
品名 法面2号手摺2.0Mタイプ
型式 N-20T
自重 4.2kg
3.0mタイプ
3.0mタイプ仕様
品番 UUN230
品名 法面2号本体3.0MタイプN
型式 N-30
自重 28.5kg
許容荷重 250kg
取付角度 20°〜75°
ステップ寸法 巾570mm×奥行250mm
ステップ数 9段
3.0mタイプ手摺仕様
品番 UUN230T
品名 法面2号手摺3.0Mタイプ
型式 N-30T
自重 4.8kg
サポート
サポート
品番 UUNSP
ユニバーサルユニット 法面2号

建築工事使用例

従業員の昇降用通路として設置


作業員の昇降用通路として設置


盛土工事の落差の昇降設備として使用


建築屋根部打設用・昇降用に設置

砂防流路工事に使用(昇降及び作業足場)


跨道橋アバット部の足場兼昇降設備として使用


作業員の昇降用通路として設置


砂防ダムPC版仮受用足場として使用
横つなぎの足場セット可能
法面2号 ユニバーサルユニット(法面2号自在階段)


法面2号(ユニバーサルユニット)設置方法

PAGE TOP